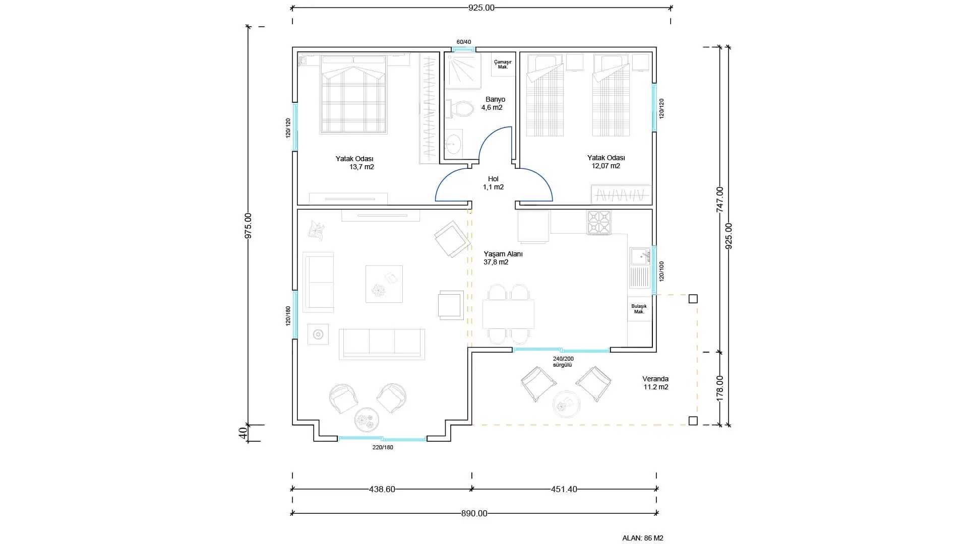
SS-1086, modern zarafetin çelikle buluştuğu, doğanın kucağında sıcacık bir yuva. 86 m²’lik bu geniş yaşam alanı, ikili beşik çatı tasarımı ile evinize klasik bir dokunuş katarken, tekkat çatı paneli ve cam yünü izolasyonuyla dört mevsim konforlu bir yaşam sunuyor. 11,2 m²’lik şirin verandası ise, gün batımında kahvenizi alıp doğayı izlemek için huzur dolu bir köşe.

Salon ve mutfağın birleştiği 37,8 m²’lik ferah alan, aydınlık ve samimi bir atmosfer yaratırken, 26,4 m² genişliğindeki yatak odası da dingin bir kaçış noktası olarak tasarlandı. Çelik karkas sistemi ve 130 mm kalınlığındaki dış cephe panelleriyle sağlam ve güvenli bir yapıya sahip olan SS-1086, dış cephede kullanılan dekoratif sıva ve kısmi betopan detaylarıyla da zarafeti yansıtıyo

  • Published: Aralık 1, 2025

( 0 Reviews )

Add review

Related Posts

View All
Top